The Wedge

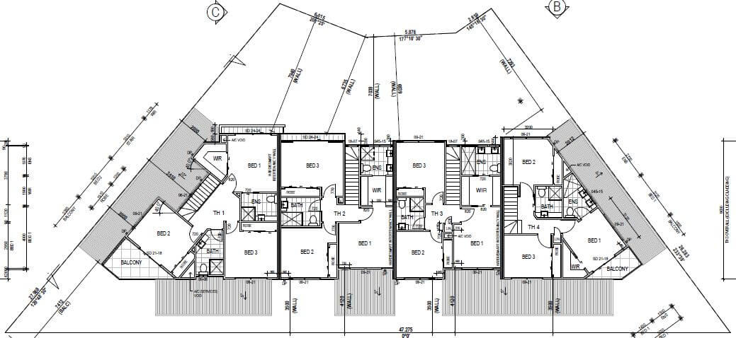
If ever you needed evidence of how Investigate Property offers value for you, this is it. This 600m2 (approximate) wedged shape site was purchased for around $600k, pretty much on par with all other 600m2 sites in the suburb. The problem is, they are almost always suitable for only three townhouses and despite the fact they all sell, the numbers rarely work (and the projects often don't proceed). This site went unsold because of the shape, which by our own admission is difficult to work with. That knocks out most beginners. We also knew there was no point only achieving three townhouses on it, which is why we hand drew it on and off for over two weeks before getting a design to work with four townhouses. The result, a four townhouse site purchased for the price of a three townhouse site.